Vollbadewanne mit der neuesten Technologie
Ein PP-Pool besteht aus Polypropylen, einer Kunststoffart, die auch für Trinkwasserbehälter zugelassen ist. Der Pool wird als „vollständiges Becken“ geliefert, um die Installation so einfach wie möglich zu gestalten. Der Kunststoff ist durchgefärbt und in Stärken von 8 oder 12 mm erhältlich. Da Polypropylen ein homogenes Material ist, beeinträchtigen Kratzer nicht die Lebensdauer des Pools, und der Pool kann weder Blasenbildung noch Osmose entwickeln (wie es bei konkurrierenden Komplettbecken wie GFK-Pools der Fall sein kann).
Die Art von Polypropylen, die in unseren Pools verwendet wird, stammt vom deutschen Hersteller Röchling und wurde speziell für die Poolherstellung mit UV-stabilem PP entwickelt. Die Tatsache, dass der Kunststoff UV-stabil ist, bedeutet, dass sich das Material im Laufe der Zeit nur dadurch verändert, dass es eine mattierte Oberfläche erhält.
Das Material ist in mehreren Farben erhältlich und ermöglicht die Herstellung von Spezialbänken, verschiedenen Treppenformen, Überlaufsystemen – der Fantasie sind keine Grenzen gesetzt.
Schnelle Installation
Der PP-Pool wird als komplettes Becken geliefert, und die Installation ist schnell und einfach. Wenn der Pool installiert werden soll, wird ein Loch gegraben, in dem der Pool stehen soll, anschließend werden Glasfaser, Drainage und eine Bodenschicht eingebracht. Danach wird die Bodenisolierung mit dem Pool verbunden und dieser platziert. Sobald der Pool in das Loch abgesenkt ist, können Sie den Pool anschließen, die Schutzfolie entfernen und mit dem Befüllen mit Wasser sowie dem Nachfüllen mit Trockenmischung beginnen.
Eine normale Installationszeit für einen PP-Pool beträgt etwa eine Woche ab dem Zeitpunkt, an dem der Bagger mit dem Graben des Lochs beginnt. In instabilem Gelände, wie Sand oder hohem Grundwasserstand, ist es jedoch notwendig, eine Bodenplatte über der Drainage zu betonieren. Ansonsten ist die Installation gleich. Lesen Sie hier mehr über die Kosten für den Bau eines Pools.
Hält Temperaturen über 33 Grad stand
Sie möchten einen Pool genießen und beim Schwimmen nicht frieren, deshalb wünschen sich viele unserer Kunden eine Badetemperatur von 28 oder sogar 30 Grad im Pool. Dies ist mit einem PP-Pool kein Problem, da das Material Temperaturen von über 33 Grad standhalten kann.
Lieferung und Montage
Das PP-Becken wird an den Seiten mit Trockenmörtel aufgefüllt, während Sie das Becken mit Wasser füllen. Der trockene Mörtel und das Wasser bilden dann Beton. Dadurch entsteht ein Betonpool, der absolut der stabilste ist, den Sie bekommen können, und der von allen Pooltypen am längsten hält, ohne zu rosten oder zu verrotten.
Die Kombination aus einem PP-Becken und Beton bedeutet, dass Sie das Beste aus beiden Welten erhalten. Sie bekommen einen Betonpool, der alle Vorteile eines PP-Beckens bietet, wie lange Haltbarkeit, kein Risiko von Fäulnis und die Fähigkeit, höheren Temperaturen standzuhalten.
Unsere Pools haben ein Gestell aus Roechling CubX, einem sehr starken, aber gleichzeitig leichten Material. CubX ist auf die gleiche Weise aufgebaut wie Flugzeugwände, bei denen zwei horizontale Wände mit vielen vertikalen Wänden verbunden sind. Dies macht die Konstruktion viel stabiler als bei der Verwendung von PP.
Sind Sie bereit, ein Modell auszuwählen?
👉 Sehen Sie hier alle unsere PP-Pools im Shop
Lieferung
PP-Pools werden, ebenso wie Glasfaserpools, als „ganzer Pool“ geliefert. Mit „ganzer Pool“ meinen wir, dass der Pool in einem Stück geliefert wird, wobei Poolboden, Wände und Treppen komplett und bei Lieferung einsatzbereit sind. Heutzutage wird der „ganze Pool“ bevorzugt, da die Installationszeit für den Pool dadurch sehr kurz ist, was zu niedrigeren Installationskosten führt.
Installation eines PP-Pools
Die Installation eines PP-Pools ist ungefähr dieselbe wie bei einem Glasfaserpool. Nachfolgend können Sie lesen, wie die Installation eines Glasfaserpools abläuft:
Zuerst muss ein Loch gegraben werden, an dem der Pool installiert werden soll.
Drainage, Substrat und eine gegossene Bodenplatte werden erstellt
Der Pool und die Isolierung werden platziert
Der Pool wird gleichzeitig mit Wasser gefüllt.
Das oben beschriebene Verfahren dauert höchstens 1-2 Wochen von der Lieferung bis zur Einsatzbereitschaft des Pools.
Die Lebensdauer eines PP-Pools
Das Material eines PP-Pools ist UV-geschützt und sehr langlebig. Die Lebensdauer der Fliesen in einem PP-Pool beträgt etwa 40-45 Jahre, und das Einzige, was mit dem Material im Laufe der Zeit passiert, ist, dass die glänzende Oberfläche nach 10-15 Jahren etwas matter wird. Wenn Sie in einen Pool investieren möchten, wird empfohlen, einen PP-Pool zu wählen, sowohl wegen seiner Lebensdauer als auch seiner Haltbarkeit.
PP Pool - Herstellung und Materialien
Ein PP-Pool wird aus dem Material Polypropylen hergestellt. Im Gegensatz zu Fiberglas ist Polypropylen für Menschen ungefährlich und ein umweltfreundliches Material, das auch für verschiedene Arten von Lebensmittelbehältern und Trinkwasserbehältern zugelassen ist.
Während der Produktion werden homogene Platten mit einer Schweißmaschine verbunden, wobei die Treppe ebenfalls mit Extrusionswerkzeugen eingeschweißt wird. Die Platten, aus denen der Pool besteht, sind zwischen 8 mm und 12 mm dick, was eine stabile und langlebige Konstruktion schafft.
Das Material eines PP-Pools ist in verschiedenen Farben erhältlich, sodass Sie die Farbe wählen können, die am besten zu Ihnen passt.
Gute Isoliereigenschaften
Ein PP-Pool hat gute Isoliereigenschaften und kann hohen Temperaturen standhalten. Polypropylen ist ein isolierender Kunststoff, und das Material ist auf der Außenseite mit 30 mm Isolierung versehen. Da beide Seiten des Pools isoliert sind, gehen nur 6 % der Wärme durch die Wände und den Boden des Pools verloren. Das bedeutet niedrigere Heizkosten, da 94 % der Wärme im Pool verbleiben. Um die Heizkosten weiter zu senken, wird die Anschaffung eines Pooldachs empfohlen, da Wärme nach oben steigt und durch ein Pooldach die Wärme im Wasser bleibt.
Viele Menschen wünschen sich einen warmen Pool zum Genießen, und dafür ist ein PP-Pool perfekt. Diese Art von Pool kann Temperaturen über 33 Grad aushalten, und wenn Sie die Vorstellung mögen, in einem warmen Pool zu baden, ist ein PP-Pool die richtige Wahl für Sie.
PGX UV-Stabilisierung
Im Jahr 2020 führte der Hersteller Roechling ein noch widerstandsfähigeres Material gegen Chlor und UV-Strahlung ein als das bisherige PG-Material. Das neue Material heißt PGX und sorgt dafür, dass die Farbe noch länger erhalten bleibt und Chlor sie nicht so leicht ausbleichen kann.
CAD-Zeichnung für jeden Kunden
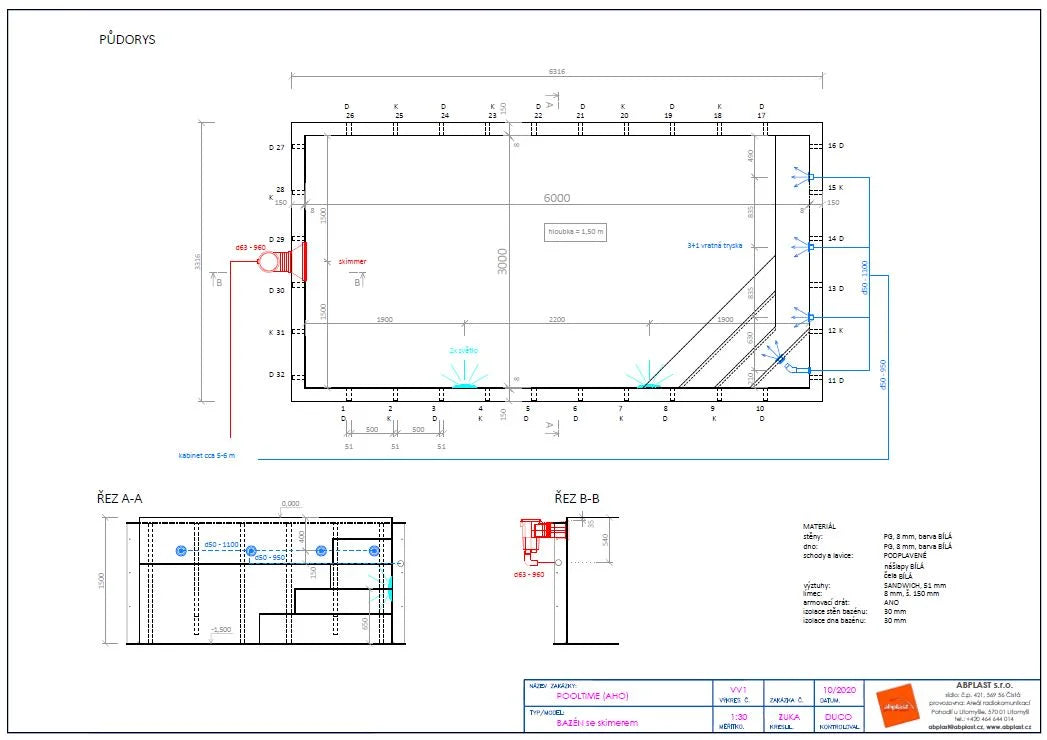
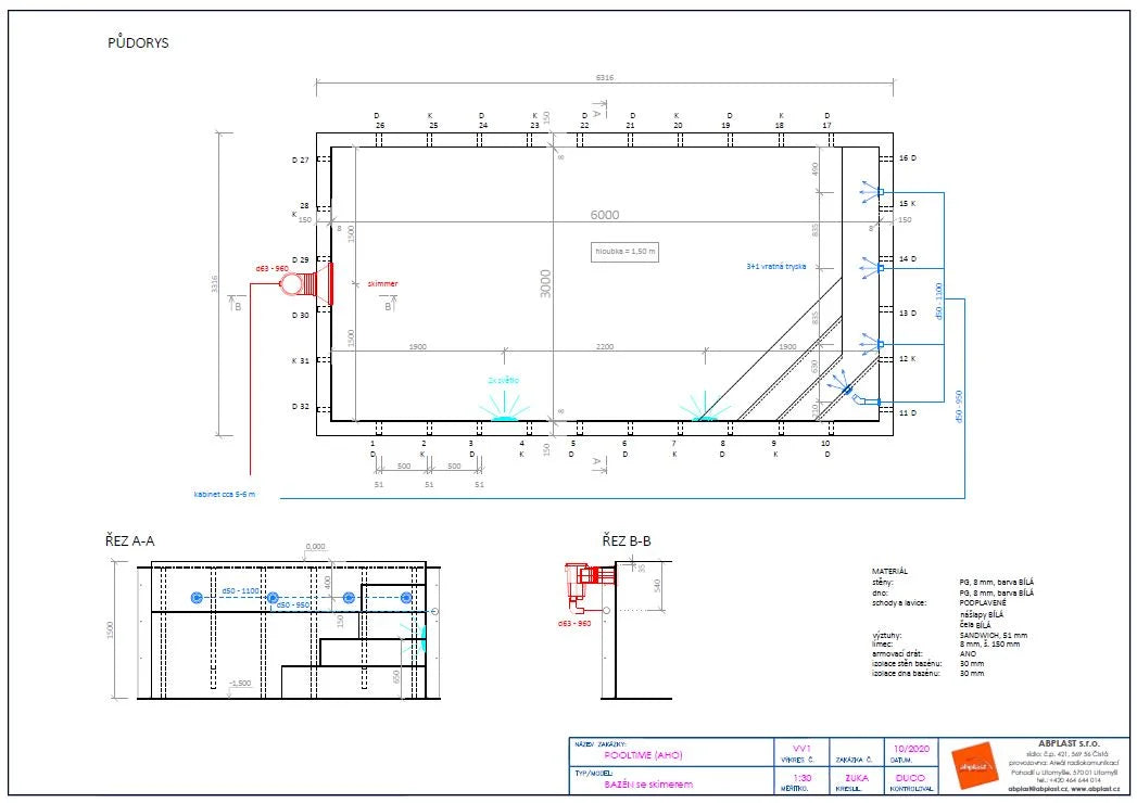
Bei der Bestellung erstellen die Ingenieure der Fabrik detaillierte Zeichnungen jedes Teils in Form einer CAD-Zeichnung, die der Kunde genehmigt und anhand derer er die Ausgrabung entsprechend planen kann.
Eingebaute Treppe
Die Treppe ist ein wichtiger Bestandteil der Poolkonstruktion. Bis 2011 wurde die Treppe abgestützt, das heißt, unter der Treppe mit Zement ausgefüllt. Diese veraltete Konstruktion war sowohl bei der Installation als auch bei Setzungen und Bewegungen im Boden problematisch. Im Laufe der Jahre haben die meisten Hersteller beschlossen, sie stattdessen durch wassergefüllte Treppen zu ersetzen. Der Pool selbst wird als eine einzige Wasserbarriere hergestellt, und anschließend wird die Treppe im Pool gefertigt. Das bedeutet, dass kein Risiko besteht, dass der Pool undicht wird, falls es zu Setzungen an der Treppe kommen sollte. Unter der Treppe gibt es eine Wasserkreislauf direkt vom Sandfilter, der gereinigt wird, und da sich in der Dunkelheit keine Algen bilden, müssen Sie sich keine Sorgen um die Wasserqualität unter der Treppe machen. Am Fuß der Treppe befindet sich ein Einlass, von dem aus das Wasser dann in den Pool zirkuliert.
Unsere Treppen sind aus halbgeschütztem Material „kubisches Korn“ gefertigt, das keine Kanten hat und ein wahres Meisterwerk ist! Wählen Sie zwischen geraden oder abgerundeten Ecktreppen mit Bank, schwebenden Treppen oder einer vollflächigen Giebeltreppe. Die Treppenkonstruktion ist dank fachkundiger Ingenieursberechnungen sehr stabil und fehlerfrei.
Welchen Pool sollten Sie wählen?
Wenn Sie sorgenfreien Besitz wünschen, empfehlen wir Ihnen, sich für einen PP-Pool zu entscheiden. PP-Pools haben eine lange Lebensdauer, sind nicht von Pestbeulen oder Rissen betroffen und sind energieeffizient, da sie eine hohe Isolierfähigkeit besitzen.
Es ist vorzuziehen, beim Kauf einer neuen Poolanlage auf hohe Qualität zu achten. Da ein Pool eine große Investition darstellt, ist es wichtig, die Entscheidung sorgfältig zu überdenken, bevor man sich für einen bestimmten Pooltyp und eine Bauweise entscheidet.
Wenn Sie Fragen oder Bedenken haben, können Sie sich gerne an uns bei Pooltime wenden, wir beantworten all Ihre Fragen.
Wir bieten Komplettlösungen an, und mit unserer Hilfe benötigen Sie nur einen Ansprechpartner, der alles von der Lieferung bis zur Installation übernimmt. Wir helfen Ihnen, ein Poolpaket maßzuschneidern, das alle Teile und Produkte enthält, die Sie für ein außergewöhnliches Poolerlebnis benötigen.
Wenn Sie mehr darüber erfahren möchten, wie viel der Bau eines Pools kostet, können Sie unseren Leitfaden besuchen, in dem wir die mit dem Poolbau verbundenen Kosten erläutern.
Lesen Sie mehr über unsere Pools und sehen Sie, welche Modelle wir hier anbieten.
Für weitere Tipps, worauf Sie beim Kauf eines Pools achten sollten, klicken Sie hier.





